Architectural Services
Project Type: Residential
Software: Autodesk Revit, AutoCAD, Vehicle Tracking
Project Duration: 12 weeks
Task Assigned
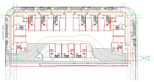
The architectural design team was tasked with performing a swept path analysis for one of the townhomes to evaluate the movement of an RV truck within the site. The study included checking entry, turning, and exit manoeuvres against the proposed architectural and site layout. Any conflicts or obstructions with architectural elements such as garage openings, columns, soffits, driveway corners, or gates were identified. Based on the results, recommendations for necessary design changes were provided to ensure safe and efficient RV access.
Additional Notes
- The analysis provided the client with assurance that the proposed layout could accommodate RV access without structural conflicts, minimizing the risk of costly redesigns or site modifications during construction.
- By validating vehicle access early in the design phase, our project team helped the client ensure the site was functional for RV owners, a crucial selling point that enhanced the overall market appeal of the townhomes.























